Technical Insight - Bespoke home gym and micro spa | Unity Architects + IQ Glass

Introduction

Unity Architects and IQ Glass are collaborating on a live project in Warwick, a sensational architectural extension and alteration that transforms an underutilised double-garage into a modern home gym and spa.

Unity Architects is a RIBA Chartered Practice based in Leamington Spa. The practice specialises in creating bespoke residential architecture and has generated a reputation for visionary architectural solutions throughout Warwickshire and the Midlands. 

IQ Glass is a high-specification glazing specialist with national coverage for industry-leading architectural glazing, with offices in Amersham, Birmingham, Manchester and the South-West.

During this technical insight, Unity Architects and IQ Glass will explain how high-specification glazing contributed to the architectural project and the critical importance of our collaboration throughout the RIBA Plan of Work to ensure exceptionally high architectural outcomes were achieved.

 

What is the project?

This scheme is a high-end, residential micro project in Warwick that addresses fitness, wellbeing and relaxation opportunities of the homeowner client.

The existing dwelling benefits from a detached double garage that has been divided in two. One half remains for vehicular use. The other half has been extended and adapted to provide leisure use for the homeowner.

The main body of the garage conversion will function as a gym. A slender rear extension provides a compact sauna, shower and changing space. The vestibule is a glass extension that mediates between the external and internal spaces.  

An L-shaped cantilevered roof introduces a dominant architectural language to pull the incoherent objects together, whilst framing the hot-tub experience with a sense of enclosure. A square puncture in the L-shaped roof is positioned above the hot-tub for stargazing.

Architectural visualisation of a high-end residential project by Unity Architects in Leamington Spa, comprising a bespoke garage extension and conversion including IQ Glass minimal frame glazing.

[Architectural visualisation of the high-end residential project by Unity Architects]

Why did the project require high-specification architectural glazing?

A focal point of the project is the vestibule. The vestibule is positioned between the external garden space and the internal gym area, with a primary function of mediating between the two environments.

The vestibule is a fluid space, one which can be used to transition from one space to another, in addition to allowing seating opportunities for relaxation and contemplation.

It was essential that the vestibule glazing was as minimal and invisible as possible to give the impression that the cantilevered roof above is floating. A standard glazing response with large transoms and mullions wouldn’t have been adequate in this instance. The architectural vision demanded a high-specification glazing product that would have minimal aluminium frame sightlines.

The angular nature of the vestibule plan arrangement, in addition to the shape of the cast-stone plinth, required a bespoke glazing solution that responded to the architectural junctions in a modern and neat fashion. 

Technical architectural plan drawing of a proposed vestibule by Unity Architects in Leamington Spa, showing the proposed glass arrangement by IQ Glass, including position of the cast-stone plinth and dwarf wall.

[Detailed technical plan drawing of the vestibule by Unity Architects]

What were the unique characteristics of the glazing solutions?

The proximity of the external hot tub influenced the specification of the adjacent glazing products. The chemically rich, high-moisture environment required non-standard frame finish upgrades.

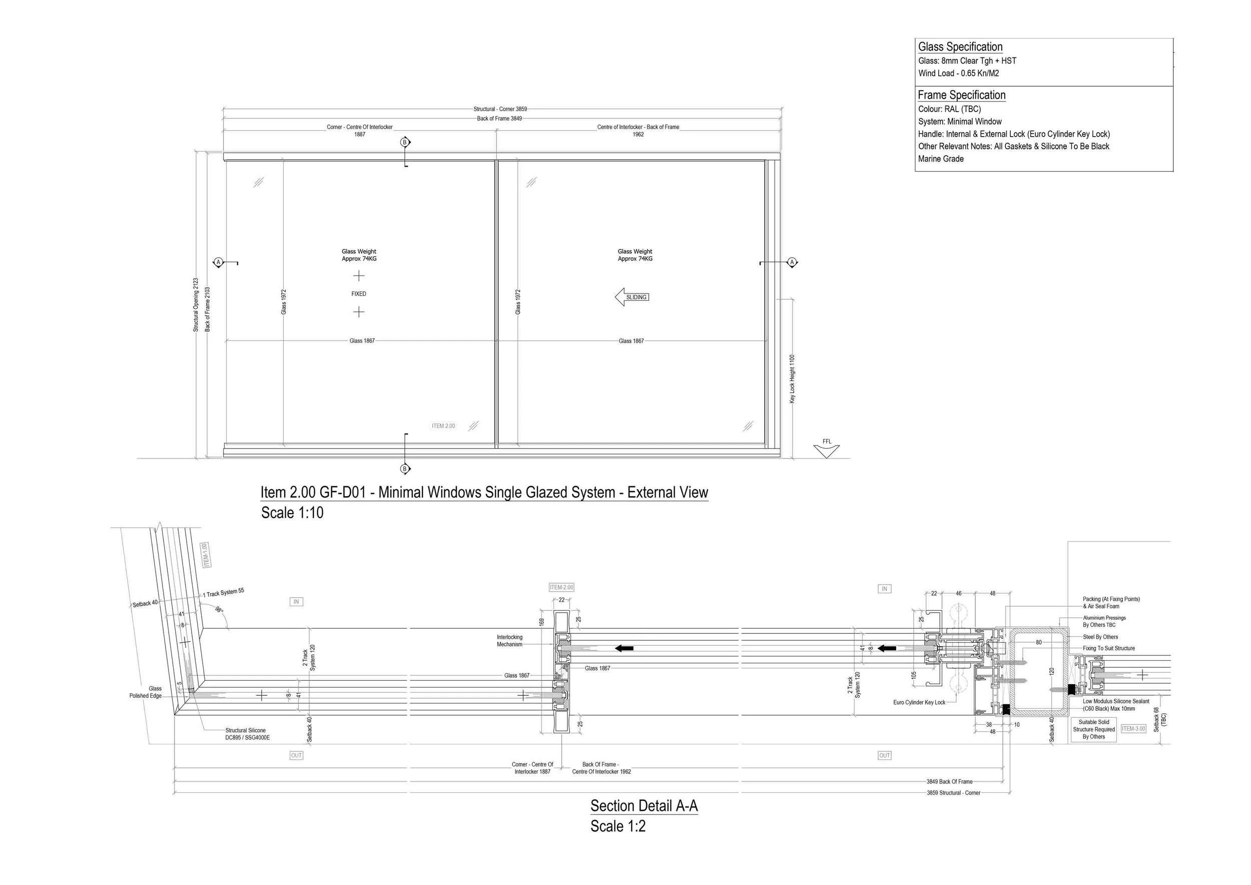
The vestibule forms an uninsulated and unheated space. The glass could be single glazed as there are no thermal performance requirements to this space. For the vestibule, IQ Glass proposed its ‘Minimal Windows’ Sliding Door System, comprising fixed panes, glass-to-glass corner connections and a two-track sliding door system.

Contrary to the vestibule, the gym space is located within the thermal envelope. IQ Glass proposed a three-track Sieger aluminium framed, double glazed, sliding door system, comprising two sliding doors and one fixed section.

Elsewhere, privacy glass, trickle ventilation, flush thresholds and bespoke aluminium pressings ensured the glazing package upheld the qualitative requirements of the architectural vision.

How did Unity Architects and IQ Glass demonstrate value?

During the design stage, the Client was presented with varying glass options. As the vestibule is an uninsulated and unheated space, IQ Glass presented the possibility of installing a frameless effect, single-glazed, patch fixed hinged system to keep costs as low as possible.

A design implication is that the patch fixed hinged doors would swing rather than slide. Unity Architects and IQ Glass held a design review with the Client to critique how the space would function and the collective conclusion was that the design value of a sliding door system outweighed the cost saving of the cheaper patch fixed hinged door system.

Whilst the Client selected the more expensive glazing option, the decision was based upon a transparent information exchange. This is where ‘cost’ and ’value’ become fractured. The Client’s decision promoted a high-quality design outcome. The value of this design decision was more powerful than the associated cost.

A list of glass-related specification options was presented to the Client, including solar control, heat soak testing, integrated slot drainage, locking mechanisms, slot aeration and non-standard RAL colours for the minimal frames. All of these empowered the decision-making capabilities of the Client.

Technical detailed drawing by IQ Glass showing their high-specification Minimal Window single-glazed system in plan and elevation, including connection details with the steel frame and angular glass-to-glass connection details.

[Detailed technical drawings in plan and elevation by IQ Glass]

How much does high-specification glazing cost?

When considering costs, it is essential to understand the value a piece of glass will introduce to a project, the specific reason for its inclusion as part of the wider design and the benefits it will bring.

Unity Architects champion the purposeful application of glazing products. Widespread, frivolous expanses with no design intent aren’t contemplated.

The glazing package for this project is approximately £29,000 excluding VAT. The bespoke solution is inseparable from the architectural vision and delivers to the precise design requirements. 

Each project is unique and therefore the cost of a glazing package will vary on a case-by-case basis.

 

Should you use high-specification glazing on your project?

Modern architecture invariably includes the design and specification of glazing products, whether it be for windows, doors, rooflights or glazed features. High-specification glazing is likely to escalate the architectural qualities of a scheme via desirable aesthetics, functionality, security and performance.

The content of this technical insight demonstrates how the architecture and glass systems perform in unison. The attention and application of IQ Glass was critical to realise the vision of Unity Architects.

An understanding of how glass technology is advancing is an essential part of achieving exceptional architectural outcomes. All schemes can benefit from high-specification glazing and therefore early engagement is recommended to ensure glazing opportunities can be maximised.

 

Do you need planning permission for a glass extension?

Unity Architects obtained planning consent from Warwick District Council during August 2025 for this project. It is essential that all forms of construction are compliant regarding development control legislation.

It may be that some householder residential projects benefit from Permitted Development Rights; however, the first step is to ensure that Permitted Development Rights are applicable to a specific building and, if so, an application for a Lawful Development Certificate should be made to the local authority, to ensure the development is lawful.

It is noteworthy that proceeding via Permitted Development Rights may have development restrictions, such as the building size, material application and architectural style. Understanding whether to make a planning application or lawful development application is more than a development control decision; it is also an aspirational consideration.

Unity Architects support a multitude of clients with making planning applications and lawful development applications to respective local authorities.

 

Who should you contact for a glass extension?

If you are a homeowner client seeking to make a glass extension, you can contact Unity Architects to talk about your project requirements, including concept design, planning permission, building regulations and construction.

If you would like to obtain early feedback regarding industry-leading, high-specification glazing solutions, you can contact IQ Glass.

 

Conclusion

Collaboration is critical to the success of all architectural projects. The realisation of an architectural vision is dependent upon the qualitative output of the entire Project Team from inception to completion.

Unity Architects selected IQ Glass to partner with on this project due to their industry-leading expertise in architectural glazing. Our respective professional services have brought this project to life, transforming the client’s dream into an enchanting reality.

Unity Architects look forward to collaborating with IQ Glass on future high-end residential projects within Warwickshire and the Midlands.

 

Written by: Jason Laity BA(Hons) DipArch DipAP RIBA [Founding Director and Principal Architect] of Unity Architects.

Next
Next

Planning Application - Beauchamp Hill, Leamington Spa