Pre Construction Site Visit - Garage Conversion in Warwick

We are about to take an underutilised double garage and transform it into a delightful micro-project for our private client.

The typical garage is unremarkable in form and function. Rarely used for vehicles and more commonly used as mass-storage of household clutter. Here we turn the scenario on its head, transforming a detached garage into the showpiece of the property.

The existing double-garage has been divided in two. One half remains for vehicular use. The other half has been extended and adapted to provide leisure use for the homeowner.

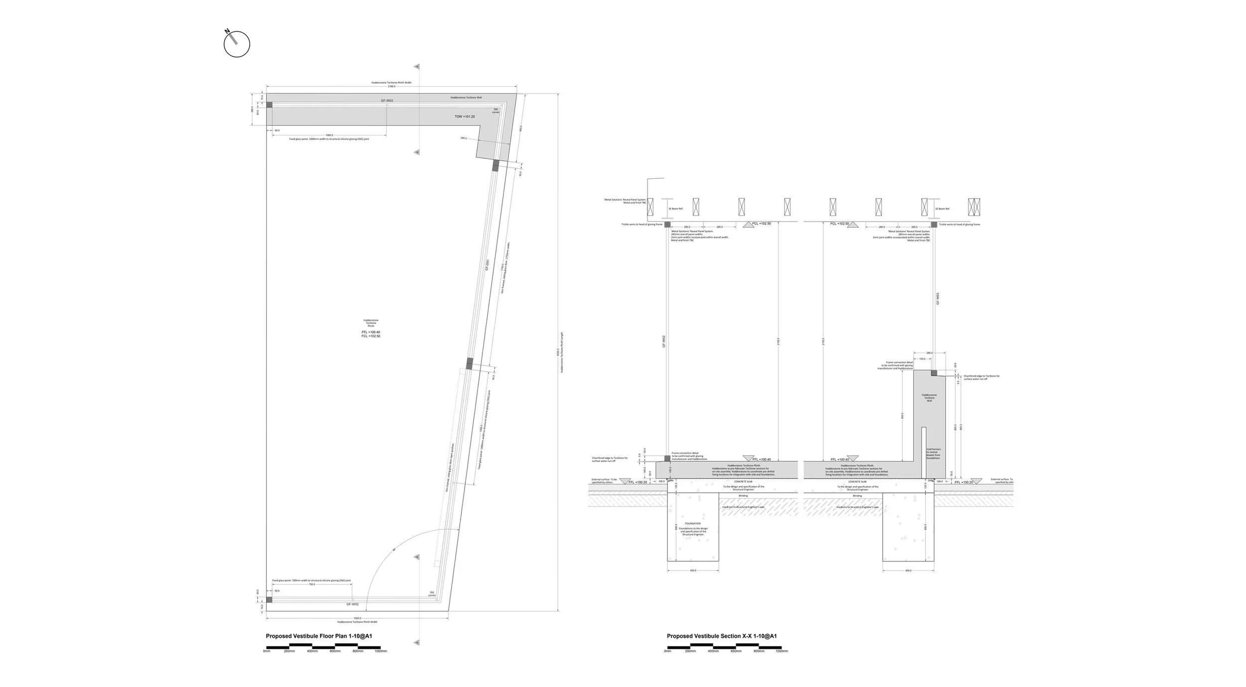
The main body of the garage conversion will function as a gym. A slender rear extension provides a compact sauna, shower and changing space. The glazed vestibule mediates between the external and internal spaces.

An L-shaped cantilevered roof introduces a dominant architectural language, to conceal what would otherwise be an awkward junction between new and old construction. A square puncture in the L-shaped roof is positioned above the hot-tub for stargazing.

The architectural intervention improves the functional and experiential qualities of the home. The existing blank garage façade now animates the garden space and invites additional activity to parts of the home that would otherwise be unconsidered.

Unity Architects and SWJ Consulting are currently developing technical design material in preparation for a construction start early 2026. Technical design has included early contractor liaison and input from specialist manufacturers, ensuring the scheme benefits from construction pragmatics and material selection that balances performance with cost. 

With a construction start planned for early 2026, this project will form an exciting beginning to the New Year.

A very enjoyable micro-project. Taking something basic and making it special.

Expert Content Written by: Jason Laity BA(Hons) DipArch DipAP RIBA [Founding Director and Principal Architect] of Unity Architects.

Previous
Previous

Reimagining an existing dwelling in Leamington Spa - Plan juxtaposition

Next
Next

Project Appointment - Dwelling in Leamington Spa